PROJECT 02
In this project, 2 is assigned to 3 tasks (2A, 2B, 2C). Students need to develop the skills required for drawing, and should be done gradually with a pencil every week. Besides, student also need to use appropriate architectural drawing conventions, the display of symbols and organization 2 as well as appropriate formats and presentation styles to incorporate and apply the drawing skills developed in the tutorial exercises. Finally, all existing sketches will be inked to practice line width on paper.
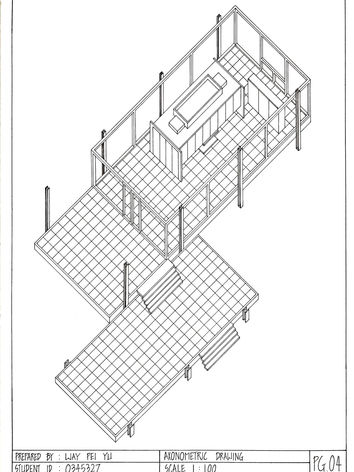
2A
REFLECTION
.png)
l learned basic knowledge and drawing technique skills in order to draw axonometric drawings and perspective drawings correctly.

It helps me to be motivated to learn and develop a new skill to enhance my understanding of orthographic, axonometric and perspective drawings.
.png)
I learned to manage my time so that I can complete all my tasks on time, so that I don't fail to submit.









